
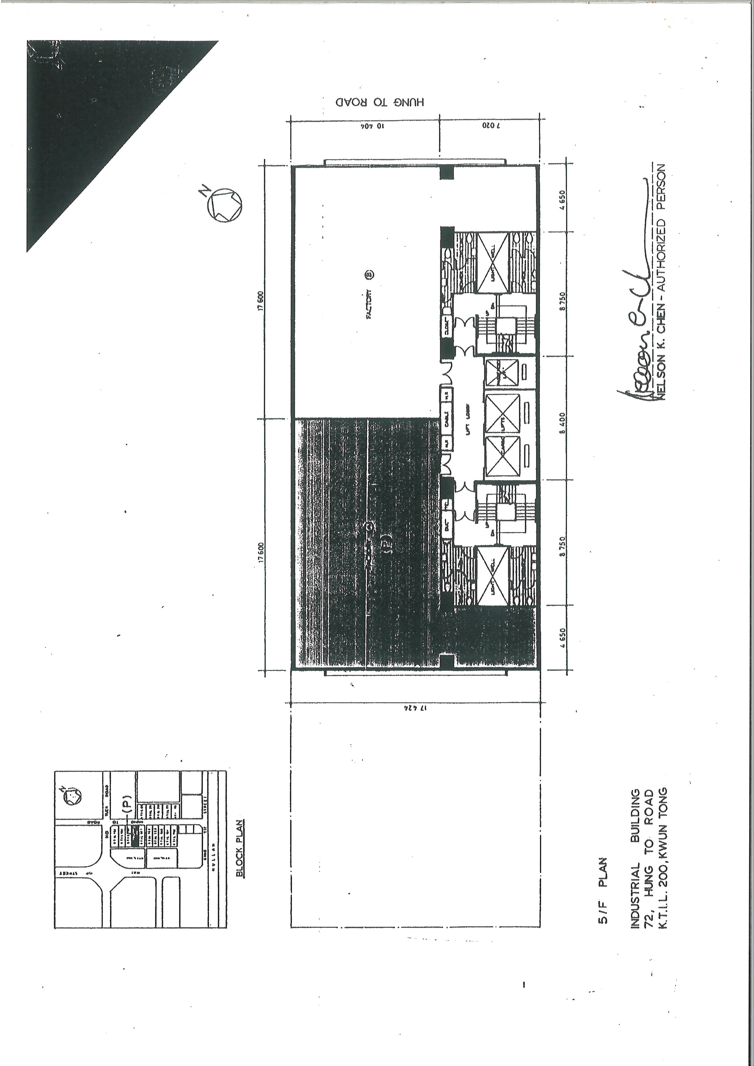
觀塘鴻圖道72號恒勝中心 5字樓A單位。 (銀主命)
廣告日期: 2025-12-17
拍賣日期: 17-12-2025
物業編號: 25121702
注 意 事 項:所 有 競 投 者 應 委 託 其 代 表 律 師 在 拍 賣 前 對 其 競 投 物 業 之 業 權 及 契 據 進 行 查 察 。 競 投 者 如 未 經 查 察 而 在 拍 賣 會 競 投 物 業 應 自 行 承 擔其 風 險 , 任 何 買 家 於 拍 賣 員 落 鎚 後 必 須 接 受 其 競 投 物 業 之 業 權 及 契 據 並 不 能 對 其 物 業 之 業 權 及 契 據 進 行 質 詢 。 而 物 業 之 有 關 契 據 , 在 拍 賣 前 可 在 賣 方 律 師 樓 供 買 家 查 閱 。 再 者 , 競 投 者 應 在 競 投 前 對 其 競 投 之 物 業 已 進 行 視 察 並 滿 意 物 業 之 狀 況 才 作 出 競 投 , 賣 方 並 不 保 證 該 物 業 並 無 違 例 之 建 築 , 加 建 或 改 建 , 亦 不 保 證 物 業 之 興 建 附 合 建 築 物 條 例 , 買 家 不 得 對 物 業 之 違 例 建 築 , 加 建 或 改 建 進 行 質 詢 或 藉 詞 拒 絕 交 易 。 物 業 次 序 或 有 所 調 動 , 請 各 界 人 仕 預 早 到 場 。